【京浜急行線「弘明寺」駅バス8分・新築戸建3,980万円】
2025年11月25日 11:00 am

◇低層住居専用地域のため、周辺は閑静な住宅地となります。
◇角地(北西)のため圧迫感がございません。
◇寒い冬でも安心、リビングに「床暖房」を標準完備
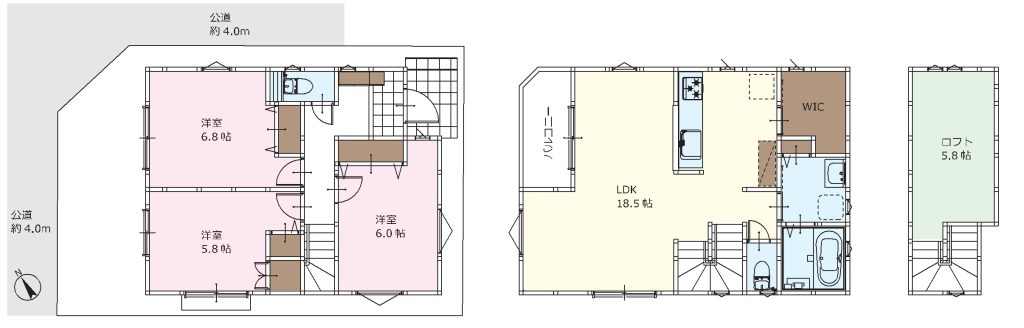
◇LDK18.5帖、固定階段のロフト付き3LDK
◇オープンスタイルの対面式キッチンを採用
◇全室に収納付き、別途ウォークインクローゼット完備
◇食器洗い乾燥機・浄水器付きのシステムキッチン
◇その設備仕様 玄関スマートキー・スマートフォン対応インターフォン
~ご見学希望の場合は~
「当社へのご来場」・「お自宅への送迎」・「現地付近でのお待ち合わせ」
お客様のご都合に合わせた対応をいたします!
お問合せ先 045-308-7338


【物件概要】
■価格 3,980万円(税込)
■所在地 横浜市南区六ツ川2丁目
■交通 京浜急行線「弘明寺」駅バス8分 バス停徒歩4分
■権利 所有権
■土地面積 74.94㎡
■建物面積 90・87㎡
■構造・間取り 木造2階建て・3LDK
■用途地域 第1種低層住居専用地域
■完成予定 令和7年11月完成予定
■引渡し 相談
■設備 公営水道、本下水、都市ガス、カースペース


















